Blog

Nutec House

Nutec House

LP Architecture

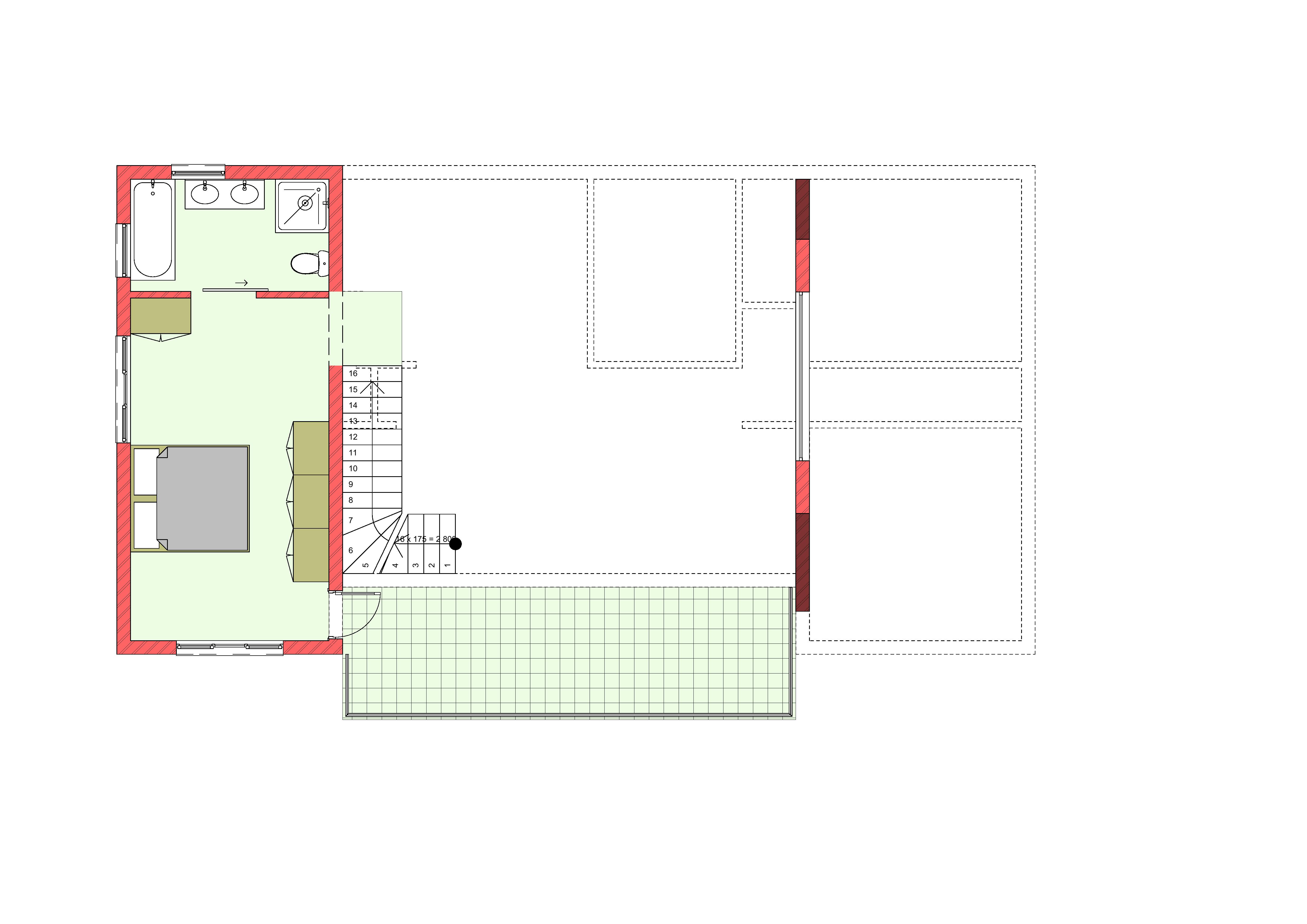
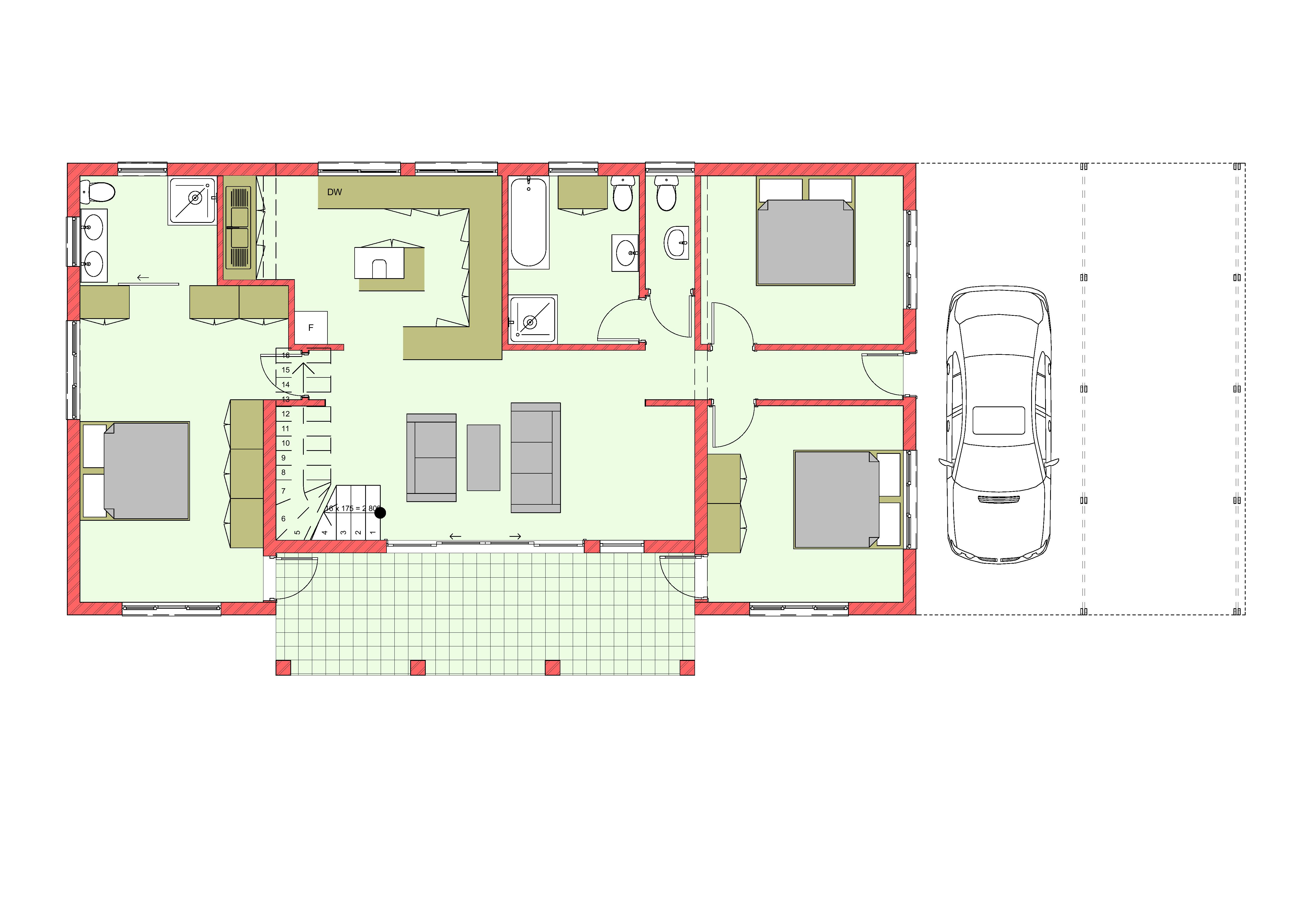
Very open plan Nutec House with open plan kichen and Island in the Middle. This house features a Second Floor with a bedroom and bathroom. In total the house has 4 bedrooms, 3 Bathrooms and a car port. The second floor bedroom features a Patio that can be accessed through the bedroom. 

We're not the best, only better than the rest.

Design-Co

Nutec House

Design-Co

LP Architecture is an architectural company that specialize in the planning, designing and supervising of your residential and commercial build. The company is one of only two certified architectural companies in Gansbaai and have been accredited with the SACAP (South African Council for the Archite...

View Profile

What is Xplorio?

Xplorio is your local connection allowing you to find anything and everything about a town.

WATCH THE VIDEO: Welcome to Hermanus
Read More

Recent Posts

Concept Design to Final Initial

Concept Design to Final Initial

Creating a concept design is one of the most important roles in the design and visual process. 

LP Architecture
Renovation

Renovation

Renovation 

LP Architecture
Renovation

Renovation

Renovations in Estate

LP Architecture
Approved Building Plans

Approved Building Plans

Approved Building Plans 

LP Architecture
Renovation

Renovation

Modern Renovation 

LP Architecture
Approved Building Plans

Approved Building Plans

Do you want to build your Dream House?  For your Architectural Services, Sketch Plans, 3D Renders and Architectural plans  Contact LP Architecture.  Failing to Plan is Planning to Fail.

LP Architecture